architek.me

Professional freelance architectural technologist, creating content with the latest design software, tools, materials and technologies.

About Me

  • Ben Waller Architectural techologist

Objective

Seeking a position as an architectural technologist, using strong creative design with Revit and/or AutoCAD to help bring projects to a successful completion.

What I Do ?

Revit, AutoCAD and Adobe Creative & Production Suites are tools that I use working on projects with problem solving, researching, developing and creating designs in the architectural environment.

  • Revit
  • Compositing
  • AutoCAD
  • Motion GFX
  • Design
  • Video Production

 

See my production portfolio here:

Skills

Revit

85%

Auto CAD

80%

Sketchup

75%

Compositing

85%

Motion Graphics

80%

Video Production

80%

More skills

Adobe
Creative Suite
Adobe
Production Suite
Design
HTML, PHP, Actionscript
English
French

Portfolio

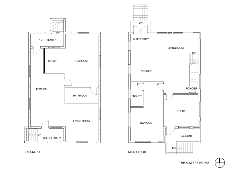
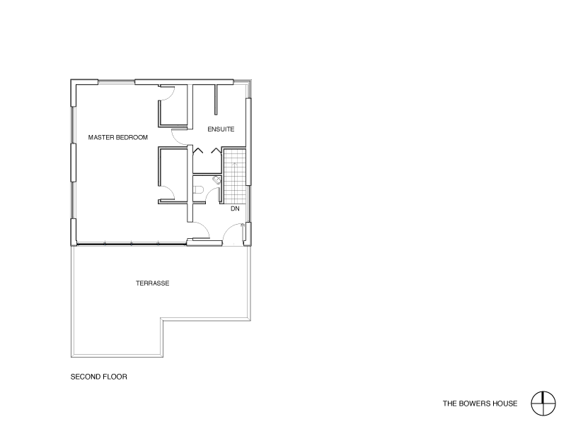
The Bowers House

Project: Design proposal for a Mount Pleasant home with an extensive green roof

Software: Revit

image

The Bowers House

image

The Bowers House

image

The Bowers House

image

The Bowers House

image

The Bowers House

image

The Bowers House

Combe d'Arvaux

Project: Design proposal for a house located in the Burgundy region of France

Software: Revit

image

Combe d'Arvaux

image

Combe d'Arvaux

image

Combe d'Arvaux

image

Combe d'Arvaux

image

Combe d'Arvaux

image

Combe d'Arvaux

image

Combe d'Arvaux

image

Combe d'Arvaux

image

Combe d'Arvaux

image

Combe d'Arvaux

image

Combe d'Arvaux

image

Combe d'Arvaux

image

Combe d'Arvaux

image

Combe d'Arvaux

image

Combe d'Arvaux

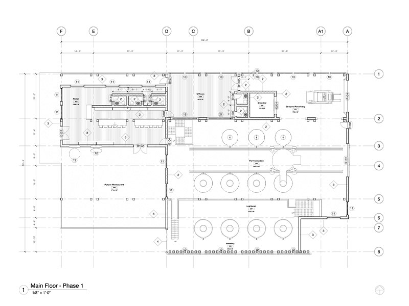
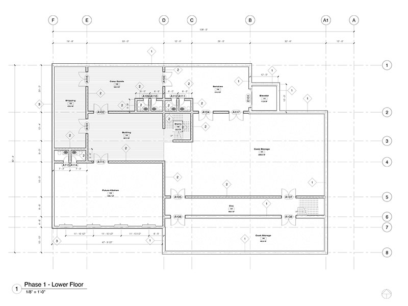
Lemelson Winery

Project: Design proposal for a Winery

Software: Revit

image

Lemelson

image

Lemelson

image

Lemelson

image

Lemelson

image

Lemelson

image

Lemelson

image

Lemelson

image

Lemelson

image

Lemelson

image

Lemelson

image

Lemelson

BCIT

Project: Design proposal for the BCIT Training Centre

Software: Revit

image

BCIT

image

BCIT

image

BCIT

image

BCIT

image

BCIT

image

BCIT

image

BCIT

image

BCIT

image

BCIT

image

BCIT

image

BCIT

image

BCIT

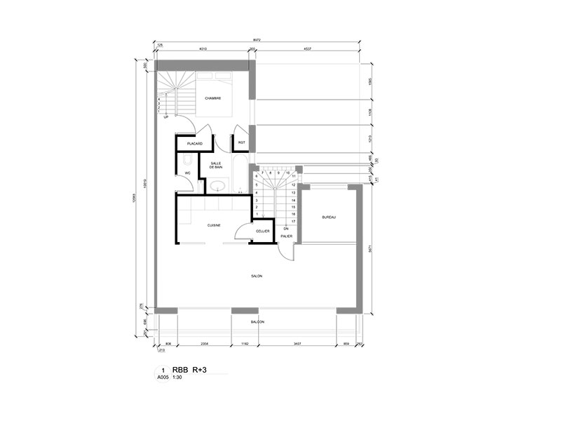
Rue du Bois de Boulogne

Project: Design proposal for a restoration of a Parisian building

Software: AutoCAD

image

Rue du Bois de Boulogne

image

Rue du Bois de Boulogne

image

Rue du Bois de Boulogne

image

Rue du Bois de Boulogne

Massing R&D

Project: R&D

Software: Revit

image

R&D

image

R&D

image

R&D

image

R&D

Compositing REEL

Project: Compositing work of the Lightroom 3D Team

Details: Montage of the 3D fly through and compositing for presentation

Softwares: Maya, After Effects

Contact

Send me a message